Our position on ‘engagement’ with Parnham Park

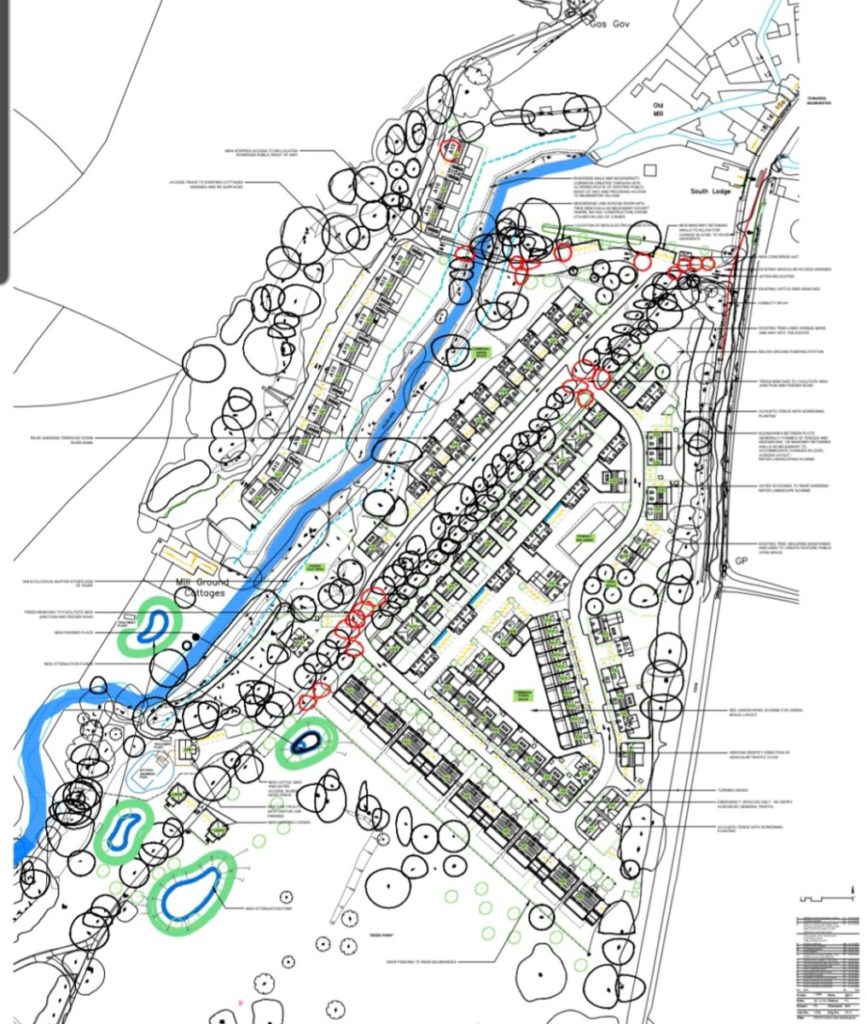
Dorset Natural Heritage Initiative is a group of local residents opposed to the proposed private housing development on the deer park and Millground meadow at Parnham Park. It has been suggested that we are not “engaging” with the developer. We want to be clear and open with other residents about our position. The planning application […]